На одном из объектов реновации в г.Москва в венлилируемом фасаде был проложен стояк ливневой канализации с толщиной утепления минеральной ватой по контуру 40мм. Заказчик заволновался не промёрзнет ли стояк зимой и как ему настроить подключение греющего кабеля.
Исходные данные:
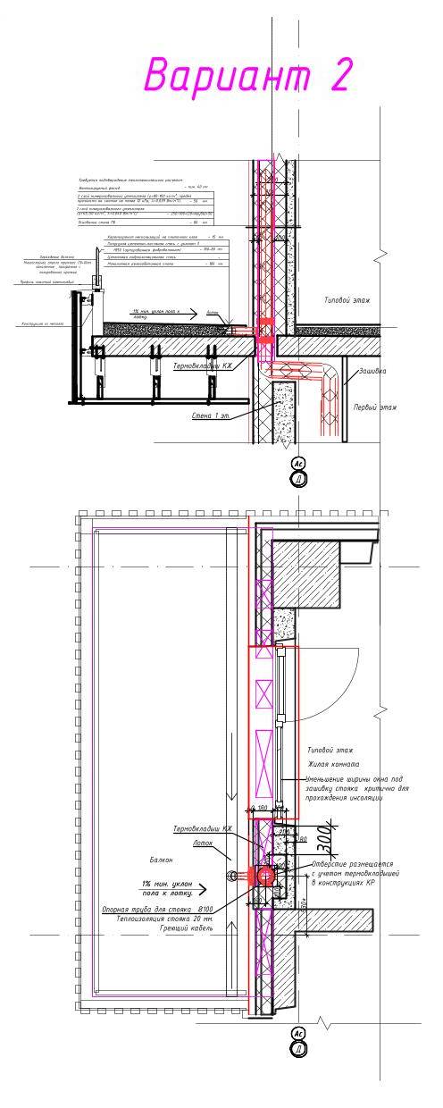
Описание ситуации: Стояк ливневой канализации в теле фасада выполнен из стальной трубы (теплопроводность 58 Вт/мС) с минимальной толщиной 80мм с греющим кабелем внутри. Подключение предполагается к централизованной системе водоотведения. Стояк ливневой канализации в теле фасада предполагается утеплить слоем минеральной ваты по кругу (толщина утеплителя из минеральной ваты (теплопроводность 0,042 Вт/мС) составляет 40мм) и прижать с стене из газосиликата (теплопроводность 0,326 Вт/мС) толщиной 200мм. Отверстие под стояк размещено с учётом термовкладыша из экструдированного пенополистирола толщиной 100мм.
Локация строительства – город Москва, температура воздуха в помещении 20 градусов Цельсия (многоквартирный дом). Температура наружного воздуха – минус 26 градусов Цельсия. Влажность воздуха в помещении 60%. Стояк ливневой канализации проходит внутри вентилируемого фасада, который утеплён двумя слоями минеральной ваты толщиной 100мм и 50мм с теплопроводностями 0,04 Вт/мС и 0,039 Вт/мС соответственно.

Необходимо проверить достаточность толщины 40мм утеплителя из минеральной ваты вокруг стояка и определить пороговую температуру воды для включения греющего кабеля.
Расчет необходим на включенный и выключенный обогрев при условии, что греющий кабель греет стояк на температуру +5 градусов Цельсия.
Локация строительства – город Москва, температура наружного воздуха -26°С, температура воздуха в помещении +20°С.Влажность воздуха в помещении принята 60%.
Теплотехнический расчёт выполнен в программном обеспечении ELCUT Pro 6.3
Точка росы — температура, до которой должен охладиться воздух, чтобы содержащийся в нем водяной пар достиг границы насыщения. В нашем случае точка росы при температуре воздуха в помещении +20°С и влажности воздуха 60% составляет 12°С.
Теплотехнический расчет узла прохода стояка ливневой канализации
1. Узел прохода стояка ливневой канализации (с утеплением 40мм с учётом термовкладыша и без нагрева)
Исходные данные:
• Материал стояка: Сталь (λ = 58 Вт/(м·K))
• Диаметр стояка: 80 мм
• Утеплитель стояка: Минеральная вата (λ = 0,042 Вт/(м·K)), толщина 40 мм
• Материал стены: Газосиликат (λ = 0,326 Вт/(м·K)), толщина 200 мм
• Температура воздуха в помещении: +20 °C
• Температура наружного воздуха: -26 °C
• Влажность воздуха в помещении: 60%
• Утепление фасада:
o Первый слой: минеральная вата (λ = 0,04 Вт/(м·K)), толщина 100 мм
o Второй слой: минеральная вата (λ = 0,039 Вт/(м·K)), толщина 50 мм
• Греющий кабель:
o Температура нагрева стояка: +5 °C
o Состояние: выключен

Вывод:
Вода в стояке ливневой канализации не замёрзнет при отключении греющего кабеля. Толщины утепления плитами из минеральной ваты 40мм вокруг стояка достаточно для незамерзания воды в стояке при выключенном греющем кабеле.
Температура воды в стояке (-10,702°С) выше температуры замерзания воды (0°С).
Передача тепла через стояк ливневой канализации происходит за счёт теплопроводности материала стояка (стали), утеплителя (минеральной ваты) и наружной стены (газосиликата).
Исходя из условий, при низких температурах воздуха на улице (-26 °C) и отрицательной температуре воды в стояке (-10,702 °C), теплоизоляция стояка должна предотвращать замерзание воды. Утеплитель минеральная вата и материал стены газосиликат максимально уменьшают потерю тепла, что способствует сохранению тепла внутри стояка.
Температура воздуха в помещении (+20 °C) также способствует поддержанию тепла в стояке. Учитывая эти факторы, а также учитывая толщину утеплителя и стены, можно сделать вывод, что вода в стояке ливневой канализации не замерзнет при указанных условиях.
Дополнительные факторы:
Скорость ветра: При сильном ветре теплопотери будут выше, но в данном случае температура наружного воздуха (-26°C) является определяющим фактором.
Отсутствие осадков: В случае выпадения осадков (снега, дождя) на поверхности стояка возможно образование наледи, которая может привести к снижению температуры воды.
Наличие греющего кабеля: Если стояк ливневой канализации оснащен греющим кабелем, то риск замерзания воды практически исключен.
Рекомендации:
• Обеспечить герметичность и целостность теплоизоляции стояка.
• Отслеживать температуру воды в стояке в холодное время года.
• При необходимости использовать греющий кабель для дополнительного обогрева стояка.
Определение необходимости подключения греющего кабеля
Исходные данные:
• Материал стояка: Сталь (λ = 58 Вт/(м·K))
• Диаметр стояка: 80 мм
• Утеплитель стояка: Минеральная вата (λ = 0,042 Вт/(м·K)), толщина 40 мм
• Материал стены: Газосиликат (λ = 0,326 Вт/(м·K)), толщина 200 мм
• Температура воздуха в помещении: +20 °C
• Температура наружного воздуха: -27 °C
• Влажность воздуха в помещении: 60%
• Утепление фасада:
o Первый слой: минеральная вата (λ = 0,04 Вт/(м·K)), толщина 100 мм
o Второй слой: минеральная вата (λ = 0,039 Вт/(м·K)), толщина 50 мм
• Греющий кабель:
o Температура нагрева стояка: +5 °C
o Состояние: выключен
Узел прохода стояка ливневой канализации (с утеплением 40мм с учётом термовкладыша)

Узел прохода стояка ливневой канализации (с утеплением 40мм с учётом термовкладыша и включении греющего кабеля)
Исходные данные:
• Материал стояка: Сталь (λ = 58 Вт/(м·K))
• Диаметр стояка: 80 мм
• Утеплитель стояка: Минеральная вата (λ = 0,042 Вт/(м·K)), толщина 40 мм
• Материал стены: Газосиликат (λ = 0,326 Вт/(м·K)), толщина 200 мм
• Температура воздуха в помещении: +20 °C
• Температура наружного воздуха: -26 °C
• Влажность воздуха в помещении: 60%
• Утепление фасада:
o Первый слой: минеральная вата (λ = 0,04 Вт/(м·K)), толщина 100 мм
o Второй слой: минеральная вата (λ = 0,039 Вт/(м·K)), толщина 50 мм
• Греющий кабель:
o Температура нагрева стояка: +5 °C
o Состояние: включен

Вывод:
Если стояк ливневой канализации оснащен греющим кабелем, то риск замерзания воды исключен.
Греющий кабель применяется для защиты труб от замерзания в холодное время года. Он должен быть подключен только в случае необходимости, когда температура окружающей среды падает до определенного уровня (в нашем случае до температуры воды -11,372° и температуре наружного воздуха – 27°С), что может привести к риску замерзания воды в стояке ливневой канализации.
Греющий кабель должен иметь встроенный термостат, который контролирует температуру и автоматически включает или выключает нагревательный элемент при необходимости. Таким образом, при достижении определенной низкой температуры, греющий кабель автоматически включится для защиты труб от замерзания.
Рекомендации:
• Обеспечить герметичность и целостность теплоизоляции стояка.
• Отслеживать температуру воды в стояке в холодное время года.
• При необходимости использовать греющий кабель для дополнительного обогрева стояка.


